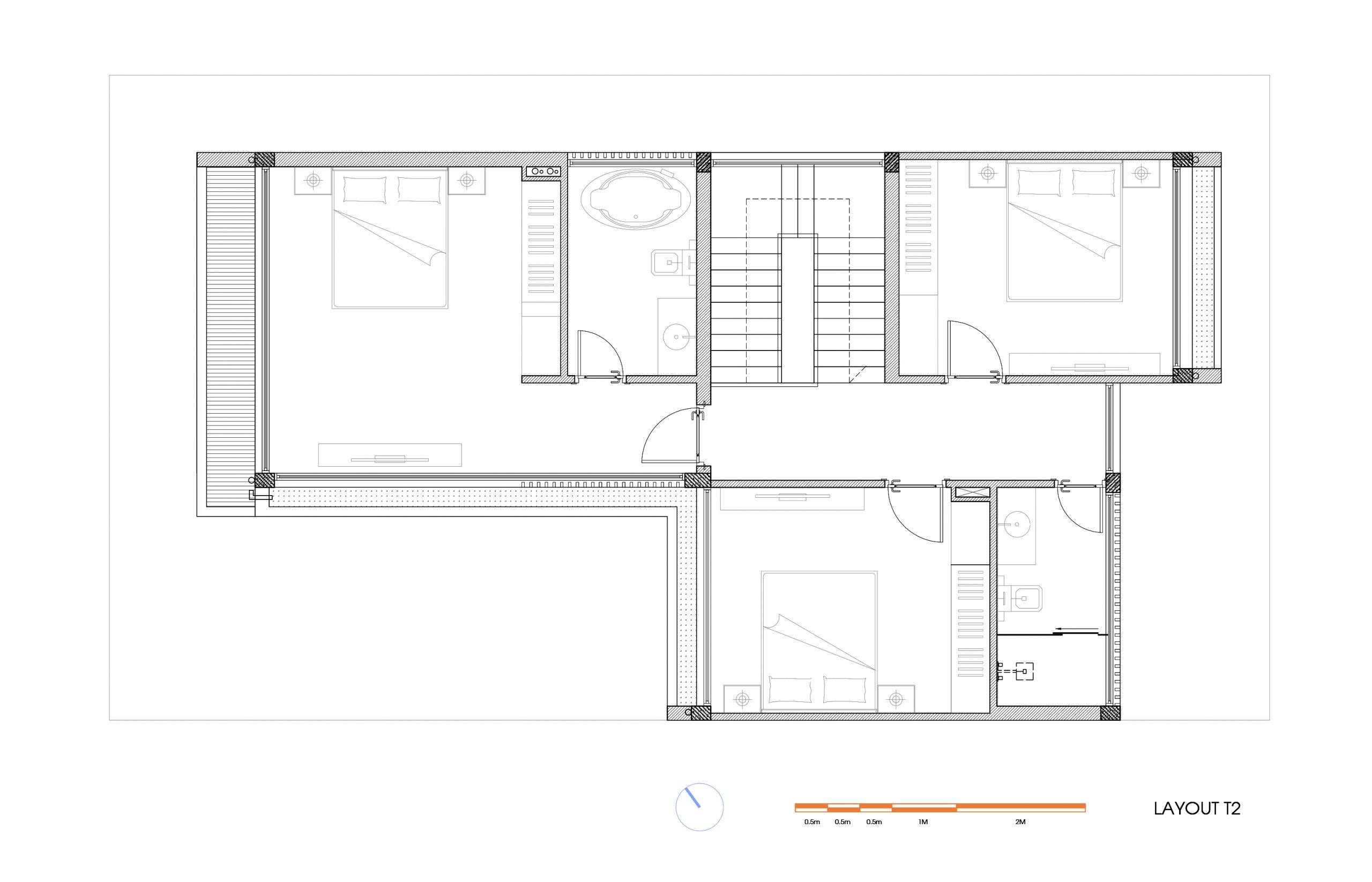
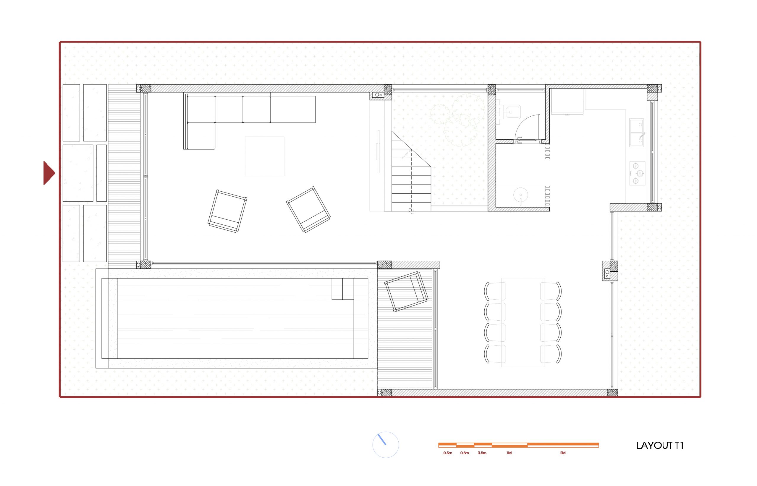
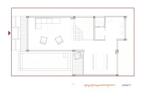
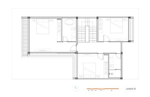
LITTLE ‘H
Ngôi nhà nhỏ ở Đại Lải.
LITTLE’H giống như tên gọi của nó – một ngôi nhà nhỏ và nhẹ nhàng.
Câu chuyện của ngôi nhà hơi khác ở chỗ chỉ để sử dụng làm nơi cho cả gia đình đi trốn vào dịp cuối tuần. Vậy nên phong cách thiết kế của ngôi nhà mang đậm tính nghỉ dưỡng và thư giãn. Với gam màu nhẹ nhàng cá tính, cùng sự cách điệu trong việc trang trí nội thất. Hà Anh đã mang đến một góc nhìn hoàn toàn mới và thú vị cho không gian sống, giúp cho mỗi cuối tuần của gia chủ thêm thú vị và thư giãn hơn.
Ở ngôi nhà tự nó đã nói lên cái gu thẩm mỹ và phong cách riêng của gia chủ.
“Your home is you!”


















