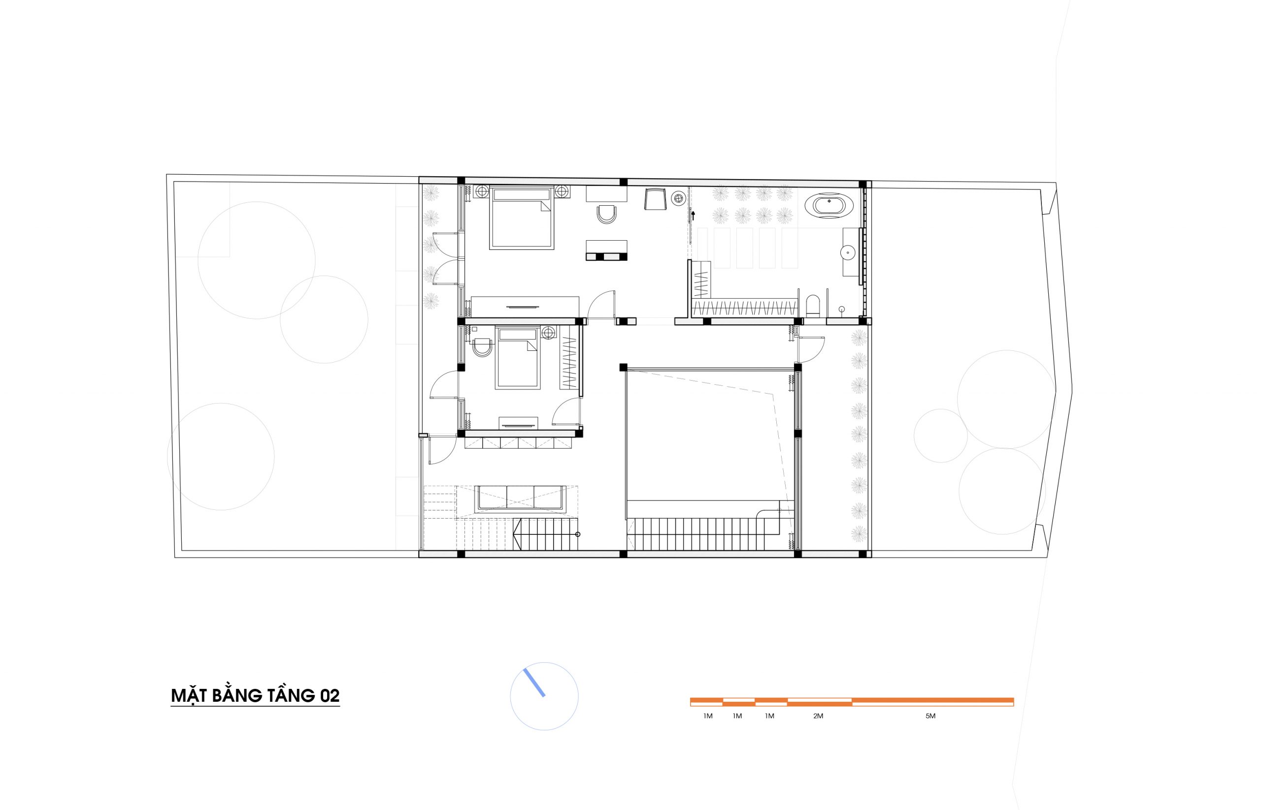
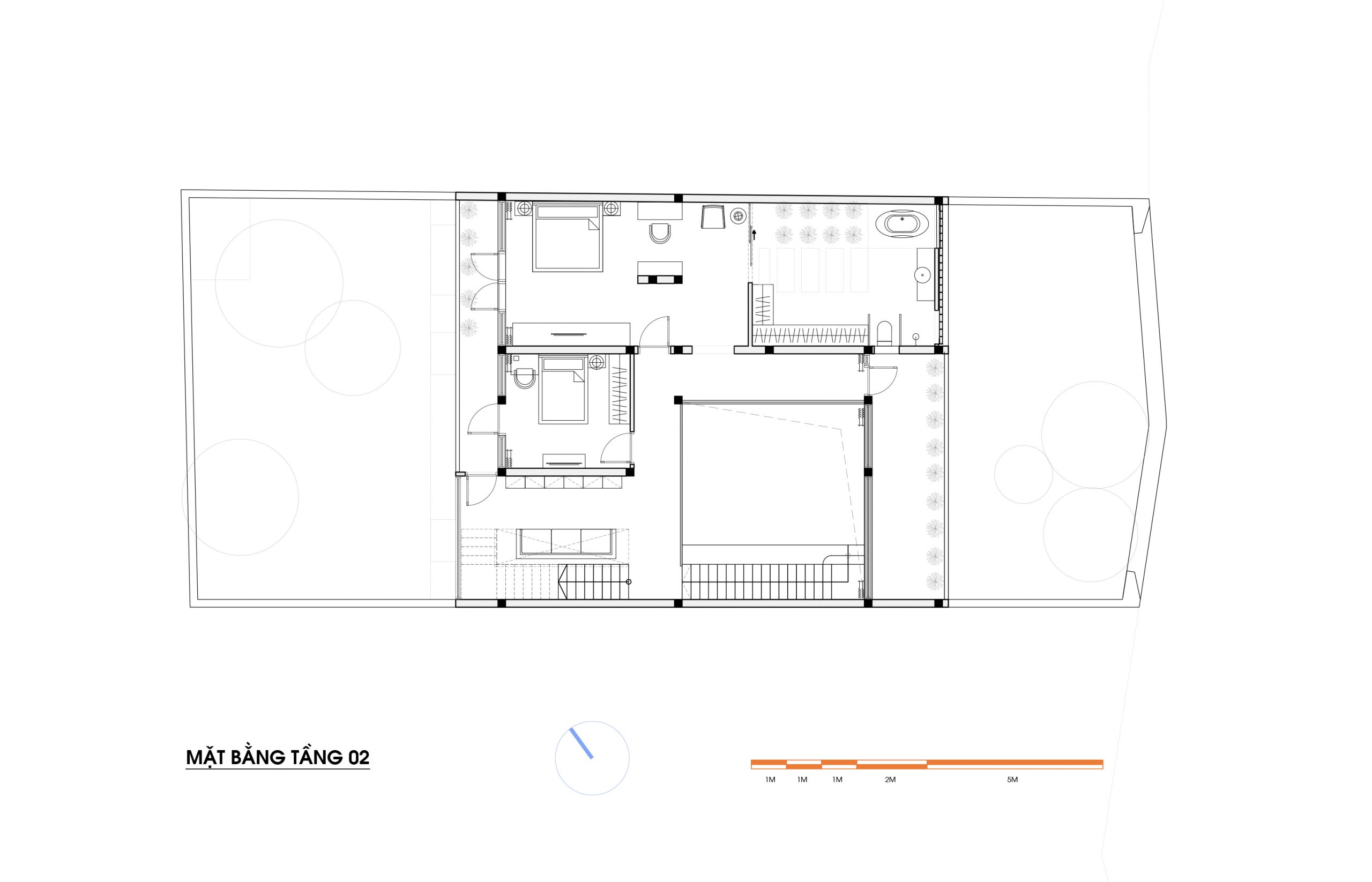
SG HOUSE
Ngôi nhà nhỏ mang hơi hướng nhiệt đới đặc trưng của khí hậu Sài Gòn và miền Nam Việt Nam nói chung. Với việc kết hợp giữa những mảng + khối nửa đặc nữa rỗng, ngôi nhà được thiết kế tận dụng tối đa ánh sáng tự nhiên, hạn chế xây tường ở mặt ngoài, thay vào đó là hệ cửa kính đóng mở linh hoạt. Chúng tôi đã tạo nên một sự kết nối giữa tự nhiên và con người sống bên trong. Đồng thời đưa vào đó những vật liệu quen thuộc như gỗ, đá, gạch thông gió, mái lá…
Phần nội thất được sử dụng tone màu trắng chủ đạo kết hợp gỗ nâu dễ chịu, điểm nhấn chính là mảng tường thông tầng được ốp gạch hoa văn trang trí, xuyên suốt chiều cao của ngôi nhà. Các chi tiết và cách bày trí mang đậm tính tối giản, nhẹ nhàng và mềm mại
Các không gian ngoài nhà như sân vườn, ao cá và hồ bơi trên mái là những điểm nhấn đặc thù, mang đến sự khác biệt cũng như thể hiện chất lượng cuộc sống cao và cái gu của gia chủ.
Tất cả những điểm đó một lần nữa nhấn mạnh lên triết lý thiết kế của chúng tôi – Your home is you!






















