SOI HOMESTAY
Một dự án homestay nhỏ được dựng lên giữa lòng Đà Lạt.
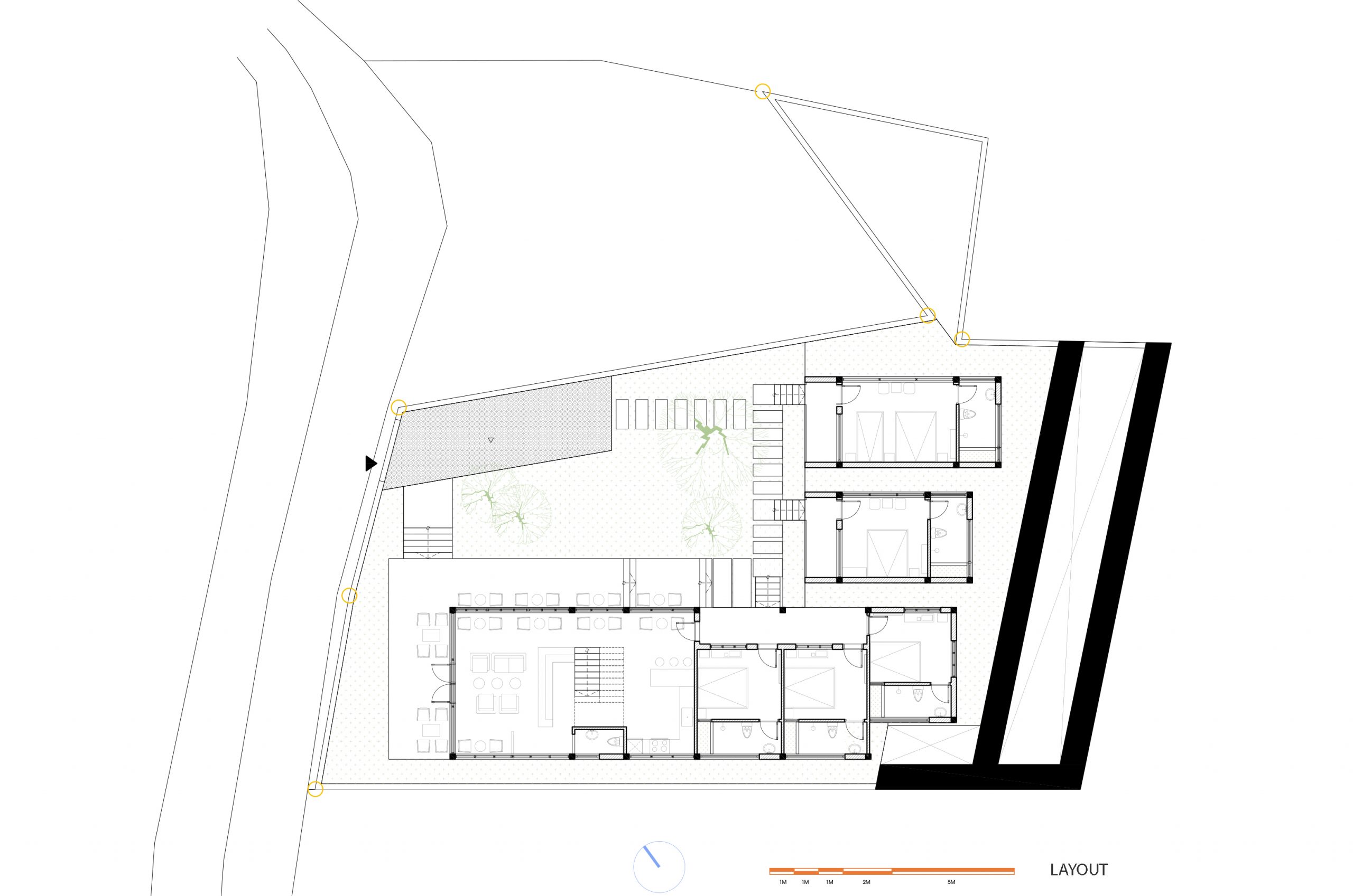
Sói được dựng lên như một khu vườn được bao quanh bởi những túp lều nhỏ xinh ấm cúng. Thứ mang lại trải nghiệm cho người sử dụng ở đây chính là không gian xanh và cực kì gần gũi với con người.
Cảm hứng thiết kế Sói đến từ chính vùng đất Đà Lạt, với sự kết hợp dịch vụ nhà ở homestay, quán cafe và xem kẽ những buổi triển lãm tranh nho nhỏ, những điểm tạo nên nét đặc trưng riêng không ở đâu có được. Sự kết hợp này tạo cảm giác thích thú và tò mò cho khách hàng khi quyết định chọn nơi đây làm chỗ nghỉ ngơi mỗi lần ghé thăm Đà Lạt. Bằng cách dạo quanh khu vườn vào mỗi buổi sáng, ngồi thưởng thức cafe, ngắm tranh và khung cảnh Đà Lạt bình minh, Sói tạo nên sự nhẹ nhàng tĩnh lặng, tinh tế và sâu sắc, khiến con người cũng chậm lại mà thư giãn, suy ngẫm.






















