THE SUANTRAI’

THE SUANTRAI’ – “Your home is you”
Diện tích: 297 m2
Địa điểm: QUẬN 12 – TP. HỒ CHÍ MINH
Thời gian ngiên cứu thiết kế: 03 tháng
Thời gian hoàn thiện dự kiến: 12/2024
——
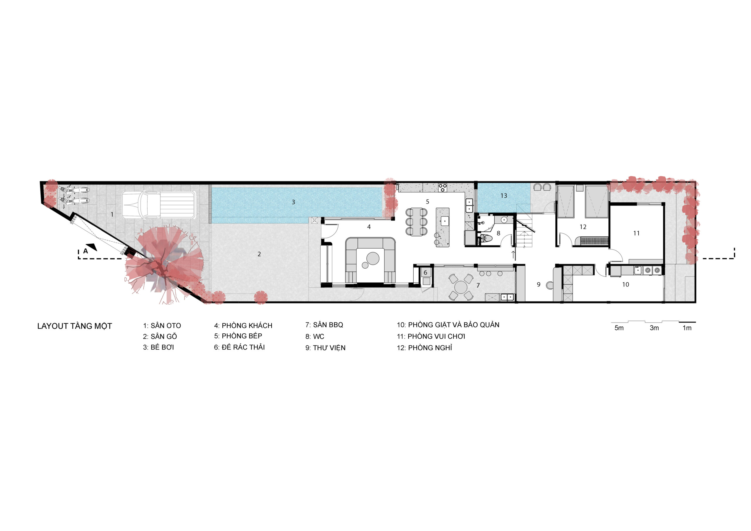
The Suantrai’ là dự án nhà ở của 1 gia đình có sự giao thoa văn hóa giữa vợ Việt và chồng Ireland. Tiếng Suantrai’ trong tiếng Ireland có nghĩa là Lời ru – ẩn chứa nhiều sự nhắn nhủ và thể hiện sự gắn kết của bố mẹ và 2 con nhỏ trong gia đình.
Với mong muốn một ngôi nhà hiện đại mang hơi hướng phương Tây và có nét văn hóa Á Đông, gia chủ yêu cầu một không gian “kín – thoáng”.
Bằng phương pháp đặc – rỗng hợp lý, nhóm thiết kế đã đề xuất một không gian có 4 mặt thoáng theo lối bố trí mặt bằng zic-zac và tổ chức giao thông hợp lý, đồng thời tạo nên sự riêng tư tuyệt đối cho gia chủ.
Mặc dù nằm giữ phố thị đông đúc, nhưng ở phía sau cánh cổng kín đáo và mảng tường xanh mướt, con người hoàn toàn quên hết khói bụi ồn ào của thành thị, để tận hưởng sự riêng tư yên bình mà ngôi nhà mang lại.

Dự án liên quan

Lên đầu trang